Ideen verwirklichen
Das Künstlerhaus Ganslberg stellt Ateliers, Werkstattarbeitsplätze und Freiflächen für temporäre Nutzungen zur Verfügung. Die Räume eignen sich als Arbeits- und Seminar- und Veranstaltungsräume. Sie können von professionellen Künstlerinnen und Künstler aller Sparten, für Fernsehproduktionen oder von Institutionen, Verbänden und Vereinen gemietet werden. Gerne erstellen wir ein auf Ihre individuellen Bedürfnisse zugeschnittenes Angebot.

Künstlerhaus Ganslberg Übersicht

Künstlerhaus Ganslberg Karyatiedenhalle

Künstlerhaus Ganslberg Haupthaus und Stallungen

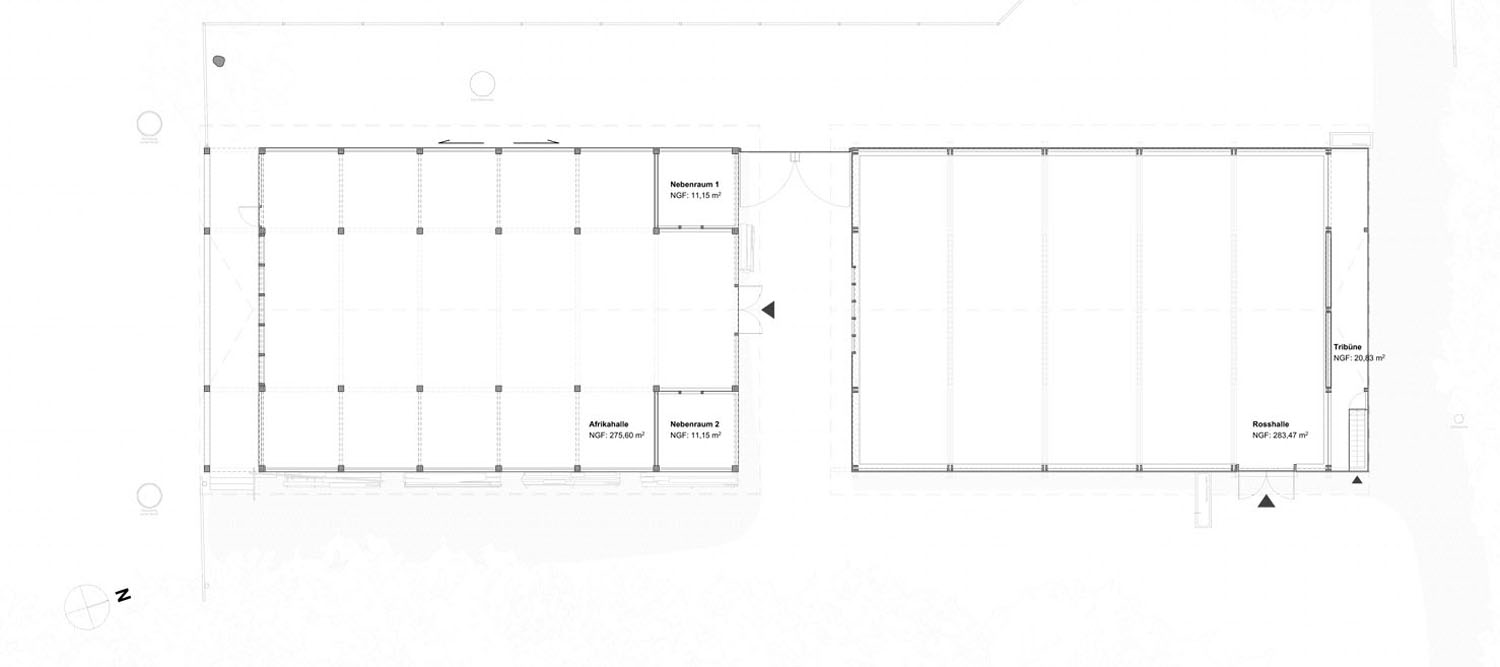
Künstlerhaus Ganslberg Afrika- und Rosshalle - Pläne: Stenger2 Architekten und Partner